|
|
所屬單位種別:防爆型自然氣、乙炔氣電加熱器 |
[封閉本頁] |
防火電微波加熱器 |
是一個種使用在防燃活動場所的以耗損能量補充轉變成為風能來對需要熱原輔材料停機加熱的,是在電加熱器的基礎上再的改進而確認的一類防燃裝配工藝。它就是你司在接收到國際外增加老員工活兒的基礎上,工業化生產出來的的一類工業節能高質量、最新科技沉靜、能供求平衡地溫風能的防燃家產爐 |
|

|
防爆電加熱器
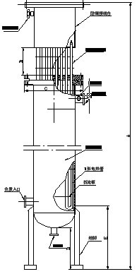
界說:是一種用于防爆場所的以耗損電能轉換為熱能來對需加熱物料停止加熱的,是在電加熱器的根本上再改良而取得的一種防爆裝配。它是我司在接收國際外進步前輩手藝的根本上,研制出來的一種節能高效、新型寧靜、能供給低溫熱能的防爆產業爐。
任務道理:在任務中低溫流體介質經由過程管道在壓力感化下進入其輸出口,沿著電加熱容器外部特定換熱流道,應用流體熱力學道理設想的途徑,帶走電熱元件任務中所發生的低溫熱能量,使被加熱介質溫度降低而終究到達加熱目標這一道理。
特色:
1、 產物具備體積小、分量輕、布局松散、裝置操縱簡潔。
2、 產物加熱時無凈化,能在較低的任務壓力下取得較高的任務溫度。
3、 接納進步前輩的主動控溫形式,主動化水平高;
4、 接納進步前輩的節制手藝,控溫精度可到達±1℃~±0.1℃;
5、 產物備有多個聯鎖接口,隨時行有用的監控;
6、 具備超溫報警體系,保證體系的寧靜運轉。
7、 接納內熱式閉路輪回供熱,熱操縱率高。
8、 節能結果明顯,運轉用度低且收受接管投資快。
|
|
|

表述圖 | |
|
|
|
|
|